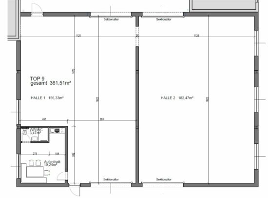
TOP 9
HALLEN inkl. Nebenräume 362 m³
Die Hallen verfügen über eine Fläche von ca. 156 m² und 182 m² und bestehen aus isolierten Betonfertigteilen und sind mit einer effizienten Luftwärmepumpe beheizt, um eine angenehme Arbeitsumgebung zu gewährleisten. Zusätzlich gibt es einen Aufenthaltsraum sowie einen Waschraum, inkl. Dusche und WC.
Dank der perfekten Verkehrsanbindung erreichen Sie die Lagerhalle bequem mit dem Auto oder den öffentlichen Verkehrsmitteln (die Bushaltestelle ist ca. 100 Meter entfernt). Pro Mieteinheit stehen zwei Parkplätze zur Verfügung und weiters sind öffentliche Parkplätze in ausreichender Anzahl vorhanden.
Vereinbaren Sie noch heute einen Besichtigungstermin und überzeugen Sie sich selbst von den Vorzügen dieser Lagerhalle.
Wir freuen uns auf Ihre Anfrage!














